Дом 95 м²

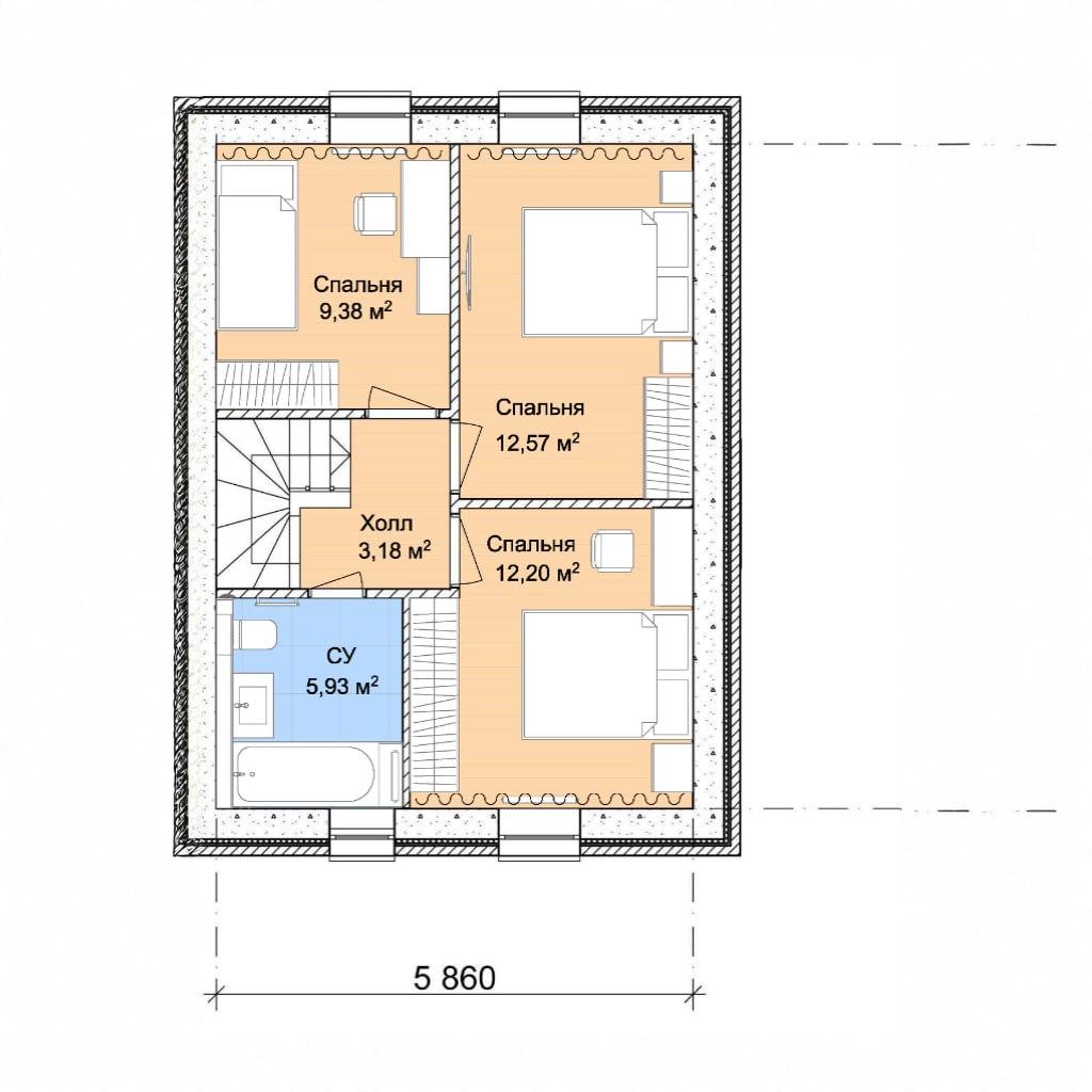
Компактный двухэтажный дом с просторной столовой и тремя спальнями.

  • от 67000 за 1 м²

Компактный двухэтажный дом с просторной столовой и тремя спальнями.